Korpus studni SKR-1 czteroelementowy z dnem

Korpus studni SKR-1 czteroelementowy z dnem

Producent: OEMDostępność: Dostępny

Kod produktu: SKR1-KORPUS4-DNOZapytaj o produkt

0,00 zł z VAT
0,00 zł netto
przechowalnia

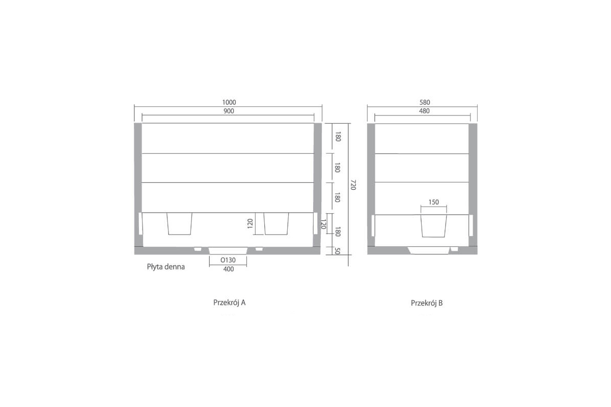
Korpus studni SKR-1 czteroelementowy z dnem + rama lekka podwójna
- Wykonana ze zbrojonego betonu
- Zabezpieczona hydrolizacją
- Waga: 250kg (w tym sama rama 100kg)
- Wymiary wewnętrzne: 90x48x72cm
- Wymiary zewnętrzne: 100x58x77cm
   Grubość dna: 6cm
   3 zaślepione otwory w korpusie o wymiarach 12x15cm
   1 otwór w podstawie o wymiarach 40x27cm
- Rama na 2 pokrywy pojedyńcze lub 1 pokrywę podwójną lekką
   Wymiar: 121.5x73x10cm (wew. 97.5x48.8x60cm)

 
Jedna paleta(euro) jest w stanie zmieścić 1 kompletną studnie.

Galeria

Zapytaj o szczegóły

Imię i nazwisko:
E-mail:
Telefon:
Twoje pytanie:
Wpisz kod widoczny na obrazku:
weryfikator

xbest.pl

św Józefa 141D

44-200 Rybnik

Wszystkie prawa zastrzeżone

Kopiowanie i powielanie w jakiej kolwiek formie zabronione

Oprogramowanie sklepu internetowego KQS.store

Projekt i realizacja : sucro.pl